ギャラリーレンタル(貸画廊)について
<ギャラリースペースの使用規約 : 2025.12.22改訂>
アート系の個展・グループ展(立体作品も含む)にご使用ください。
—————————————————————————-
期間 | 火曜 ~ 日曜の6日間 (祭日開廊)
| 11:00 ~ 18:30 (最終日16:30まで)
—————————————————————————-
料金 | Left Room 12万円(税別) / 税込 132,000円
| Right Room 9万円(税別) / 税込 99,000円
| Left + Right Room 20万円(税別) / 税込 220,000円
| Right Room + 奥室 13万円(税別) / 税込 143,000円
| L + R Room + 奥室 24万円(税別) / 税込 264,000円
—————————————————————————-
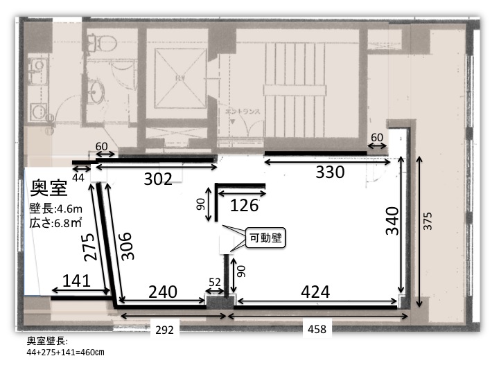
壁面長 | Left Room 14.0m(壁面長) / 17.1㎡(床面積)
床面積 | Right Room 10.8m(壁面長) / 8.3㎡(床面積)
(約) | Left + Right Room 24.8m(壁面長) / 25.4㎡(床面積)
| Right Room + 奥室 15.4m(壁面長) / 15.1㎡(床面積)
| L + R Room + 奥室 29.4m(壁面長) / 32.2㎡(床面積)
| (稼働壁を使用しての壁面長になります。)
—————————————————————————-
搬出入 | 搬入・設営 : 日曜日 18:00 ~
| 搬出 : 最終日 16:30 ~ 17:30
—————————————————————————-
在廊 | 作家在廊可 / 作家不在展示も可
—————————————————————————-
販売 |
手数料 | 販売価格の30%
—————————————————————————-
| 作家作成の場合 : 開催1ヶ月前までに
| DM1,000枚(画廊から送付分800枚と
| 会場設置分200枚)と送料10,000円。
案内状 |
| 画廊作成の場合 : 開催3ヶ月前までに作品画像と
| デザイン費(※1) +画廊から送付分の送料10,000円
| ※1.フォーマット使用5,000円、+印刷費実費。
—————————————————————————-
支払 | 申し込み時に 予約金として50%以上
| 残金は、開催1ヶ月前までに
—————————————————————————-
取消料 | 利用者都合の場合、開催日の3ヶ月以前は半額、
| 3ヶ月前以降は、全額。
—————————————————————————-
●申込:お手数ですが展示作品の資料(ポートフォリオ、履歴、展示作品等、
又は前回展示等の判断できるもの)をご持参又は同封の上で、
使用申込書に記入の上で申込をお願いします。
※内容によっては、ご希望に添えない場合も有りますので予めご承知ください。
●作品拝見:使用申込を前提としない場合は、有料(5,000円)とさせて頂きます。
●お支払い:予約金として、指定口座に半金以上をお振込み下さい。
(残金は、開催1ヶ月前までにお支払い下さい。)
三菱UFJ銀行 銀座支店 普通 0177557
口座名義 アートギャラリー エムハッシィー ハシモト マサノリ
(※予約金は、クレジットカードが利用できませんのでご了承ください。)
●作品保管:会場での作品の監視保全は、使用者の責任においてお願い致します。
盗難・火災などの災害の場合、並びに作品の汚損等、不慮の事故に対し
当画廊は責任を負いかねます。損害保険をお掛けになる場合は、使用
者側にてご手配ください。(空き箱等の収納場所も用意してあります。)
●設備:照明は、スポットライトと直管型ライトが使用できます。どちらも、調光可能
です。CD用BGM設備も有ります。液晶プロジェクターは、有償(5,000円/一日)
●設備破損:諸設備の破損等の場合は、実費賠償をお願い致します。
●現状復帰:会期終了時には、会場及び付属設備を現状に戻して頂きます。
汚損・損傷などが発生した場合は、実費をご負担頂きます。
●使用権:お申し込み時のご使用目的と異なる目的には、使用できません。
また使用権の転貸・譲渡もできません。
●キャプション:出来れば展示する作品毎にご用意願います。(例:写真作品)
作家名(必要に応じて)、タイトル、撮影場所、撮影年、プリント年、
edition:No、Print Size、メディア又は用紙種類、プリント方式、
額装サイズ、価格(額装別・額装込/税込) 基本、税込で明記を
お願いします。作成もお引き受けします。作成費15,000円(税込)
●案内状:新規のデザインを画廊側に依頼される場合は、
デザイン費15,000円(税込)+印刷費実費で承ります。
また、特別に美術館や出版社に送付を希望される方は、
郵送料をご負担頂ければ当画廊から発送のお手伝いも致します。
●補足
・作家在廊時は、控え室として奥室(展示の有無に関わらず)をご利用できます。
・ギャラリー内は、禁煙となっております。
・パーティーについては、ご相談ください。
・飲食類は、ご使用者の持ち込みとなります。また後片付け、ゴミ類の後始末も
ご使用者でお願いします。ゴミ出しは、事業系有料ごみ処理券が必要になります。
・化粧室は、画廊スタッフとの共用になります。
●看板(B2サイズ/横515mmx縦728mm程度)をお貸し致しますのでご使用ください。
●その他:当初はレンタルでのご使用となりますが、作品販売実績(レンタル費用の5倍
以上)や展示を通して判断し、企画展や半企画展での展示及び取扱作家として
検討させて頂く場合もあります。
●M84 ギャラリーレンタルの特徴まとめ
1.場所 : 駅1分(東銀座駅)、歌舞伎座の裏。
2.雰囲気 : 全面白のホワイトキューブ。
3.スペース最大 : 床面積:約32.2㎡、壁面長:約29.4m(可動壁90㎝x2含む)。
4.設営 : 釘打可、ピクチャーレール有、水平・垂直レーザー水準器有。
5.作品の搬入 : 展示一週間前で18:30以降なら持ち込み可、宅配可、エレベーター有。
6.在廊 : 指定無し(作家不在展示可)、作家在廊可。
7.照明 : スポットライト調光可、蛍光管調光可、天井・床にもコンセント有。
8.入場料 : 設定可(徴収もお伝い可)
9.書籍等 : 販売可(ただし販売手数料30%)
10.レセプション : 可能、冷蔵庫有、電子レンジ有、ポット有、テーブル有。
<会場図面>


床面積:最大32.2㎡
壁面長:最長29.4m(可動壁90㎝x2含む)
壁面高:2.63m(一部2.14m)
床材:タイル
入口
開口部:巾1m17㎝
高1m98㎝
対角2m29㎝
エレペーター
開口部:巾80㎝
高2m10㎝
対角2m20㎝
階段:巾94㎝
高2m20㎝
以上
